12x35 Affordable Modern 1bhk House Plan
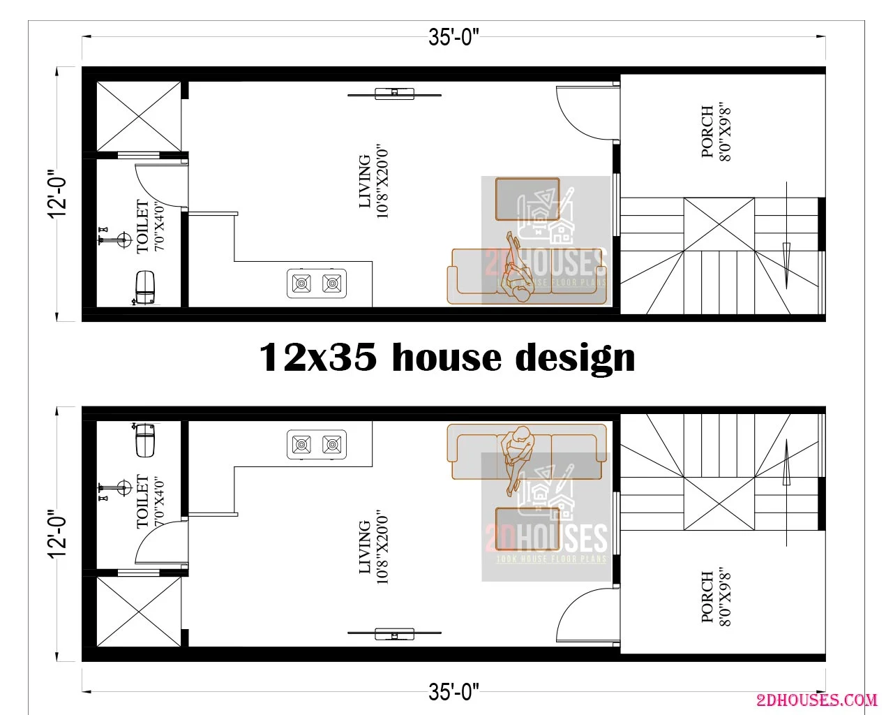
This is a beautiful, 12x35 ghar ka naksha map with a built-up area of 420 sq ft and an east-facing orientation. It is best suited for a small family of three members. Additionally, the floor plan includes one bedroom, one toilet, a spacious living hall, and a modular kitchen with an attached wash area.

3bhk 40x50 Farm house plan
1200 sqft house plans 3bhk
12x35 affordable modern 1bhk house plan
12x30 North Facing Vastu Compliant House Plan
12×40 Affordable House Design
12x35 Affordable Modern East Facing